$675,000
 $3,833 est/mo Sourced by Back At You

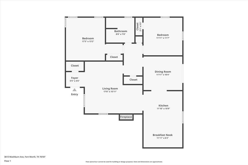
3613 Washburn Avenue,Fort Worth, TX 76107

Fort Worth, TX 76107

Share:

Description

Discover a rare opportunity in the heart of Fort Worth. This charming 2-bedroom, 1-bath home offers versatile living space on a generous lot. Ideally located within walking distance to the Cultural District, world-class museums, and Dickies Arena, the property places you at the center of Fort Worth’s best dining, shopping, and entertainment. Built in 1955, the home blends traditional character with thoughtful updates. Inside, you’ll find a bright and inviting living room, a dedicated dining area, and a beautifully updated kitchen with a breakfast nook. Charming finishes and stylish details, including designer wallpaper, bring warmth and personality throughout. The flexible layout makes this home a true standoutperfect as a comfortable residence, an income-producing rental, or even a business office in a prime location. The spacious lot offers outdoor potential for entertaining, gardening, or future expansion. Whether you’re investing, downsizing, or seeking a property with endless possibilities, 3613 Washburn Avenue delivers timeless charm, modern convenience, and unmatched versatility in one of Fort Worth’s most desirable areas.

Details

MLS #21067481
Listing TypeFor Sale
StyleHouse
Sub-TypeResale
StatusActive
Year1955
Days On Site45
Listing Provided ByBriggs Freeman Sotheby's Int'l | Thurman Schweitzer

Features

Bed(s)2
Bath(s) 1 Total
SQ Feet1,205
Car PortYes
Story(s)1
Acreage0.14

Interior

Room Count6
CoolingCentral Air, Electric
HeatingCentral, Electric
Interior FeaturesCable TV Available, Chandelier, Decorative Lighting, Eat-in Kitchen, Granite Counters, High Speed Internet Available, Kitchen Island
AppliancesDishwasher, Electric Cooktop, Electric Oven

Exterior

Exterior FeaturesPrivate Entrance, Private Yard
Security FeaturesSmoke Detector(s)
Construction MaterialsBrick, Siding
Foundation DetailsPillar/Post/Pier
Lot FeaturesLandscaped, Lrg. Backyard Grass

Parking

Garage Yn0
Attached Garage Yn0
Parking FeaturesCarport

Utilities

UtilitiesCity Sewer, City Water

Taxes

Unexempt Taxes7373

Area Information

StateTX
CountyTarrant
CityFort Worth
Zip Code76107
AreaTarrant
Community NameQueensborough Heights Add
School DistrictFort Worth ISD
Elementary SchoolSouthhimou
High SchoolArlngtnhts
Sourced by Back At You

Request a showing

Request a showing

Loading Form

All information provided by the seller and is deemed to be correct, but is not guaranteed. Buyer to verify and satisfy themselves with all information listed including but not limited to lot size, room sizes and square footage.  Buyers are encouraged to have property inspected by inspector of their choice.  Price subject to change. IDX information is provided exclusively for personal, non-commercial use, and may not be used for any purpose other than to identify prospective properties consumers may be interested in purchasing. You may not reproduce or redistribute this data—it is for viewing purposes only. This data is deemed reliable, but is not guaranteed accurate by the MLS or NTREIS.

Contact

Learn More About This Property

StateTX
CountyTarrant
CityFort Worth
Zip Code76107
AreaTarrant
Community NameQueensborough Heights Add
School DistrictFort Worth ISD
Elementary SchoolSouthhimou
High SchoolArlngtnhts
Sourced by Back At You
Listing Updated: November 7, 2025 at 1:20:21 PM PST