Welcome to 1226 Heights Boulevard in the heart of the Houston Heights along the city's most picturesque streets. 4 bedrooms/4.5 baths plus garage apartment with kitchen and full bathroom. Extra off-street parking behind double driveway gates lead down to an oversized 2 car garage. All on a 7,500 sf lot (per HCAD) and zoned to Harvard Elementary (buyer to verify eligiblity)
Nicely landscaped front yard with sprinkler system in place. Brick walkway up to the front porch welcomes visitors. Stand-by generator in place along with a water softener system.
Floorplan of 1226 Heights Blvd.
Large front entryway foyer greets guests.
Beautiful staircase highlights the foyer. Hardwood floors, high ceilings and nice natural light throughout.
Front living room is an ideal space to enjoy company and quiet conversation.
Nice architectural details include crown molding throughout and open columns that transition into the dining room. Window treatments as well.
Dining room is where you will enjoy holiday gatherings and large dinner parties.
Striking chandelier and great large windows that bring in some northern exposure natural light.
Relaxing and spacious family room includes a bookshelves for your books and decorative pieces. Bose ceiling speakers in place.
The open columns are featured from the dining to family room too. Gaslog fireplace is perfect for cool Houston temps.
Gourmet kitchen offers marble counters, island with counter seating, stainless steel appliances and lots of cabinet storage.
Undercabinet lighting, warming drawer under the microwave and gas range.
Kitchen toward breakfast room.
Breakfast eat-in area off the kitchen is perfect for casual everyday meals.
Mudroom area behind the breakfast room is where you can store coats, bags, shoes and extra items.
Kitchen toward family room.
Family room toward kitchen and dining.
Downstairs guest bedroom can also double as a home office or both. Large storage closet is good for big items. (virtually staged)
Or use the downstairs room as a media room! (virtually staged)
Full bathroom for the downstairs bedroom complete with marble vanity and walk-in shower.
Very practical walk-in shower downstairs for guests or four-legged friends.
Also downstairs is a powder bathroom that's tucked away for privacy.
Upstairs gameroom provides, yet, another living area. (virtually staged)
True primary bedroom suite is upstairs and fits a king bed nicely plus extra room for seating.
Very spacious primary bedroom with vestibule to the bathroom.
Luxurious primary bathroom has a spa-like feel with double sinks, vanity, soaking tub and walk-in shower.
Close-up look at the Victoria and Albert soaking tub and fixtures along with the walk-in shower. Private water closet as well.
Vanity area which opens to the walk-in closet.
Huge walk-in closet will accommodate all of your wardrobe needs.
Upstairs secondary bedroom is a nice-size with ceiling fan, walk-in closet and window treatments. (virtually staged)
Bathroom for the secondary bedroom with lots of counter space.
Walk-in shower for the bathroom can be closed off for privacy.
Another secondary bedroom upstairs with sliding barn door into the en suite bathroom. (virtually staged)
En suite bathroom has a gorgeous vanity with sidelights and tub/shower.
Laundry room upstairs makes laundry chores a breeze. Soaking sink with hanging rack above and lots of storage cabinets.
View from your backdoor out to your covered patio, greenspace and 2 car garage with apartment above.
Outdoor kitchen is equipped with a gas grill with dedicated line. No more trips to the store for a propane tank exchange!
Live oak tree graces the backyard to provide shade and beauty.
Turfed backyard is an easy, low-maintenance way to enjoy all your outdoor activities.
Oversized 2 car garage with side storage area and equipment closet. Lots of extra parking with turnaround area and play area behind the 2nd automatic gate.
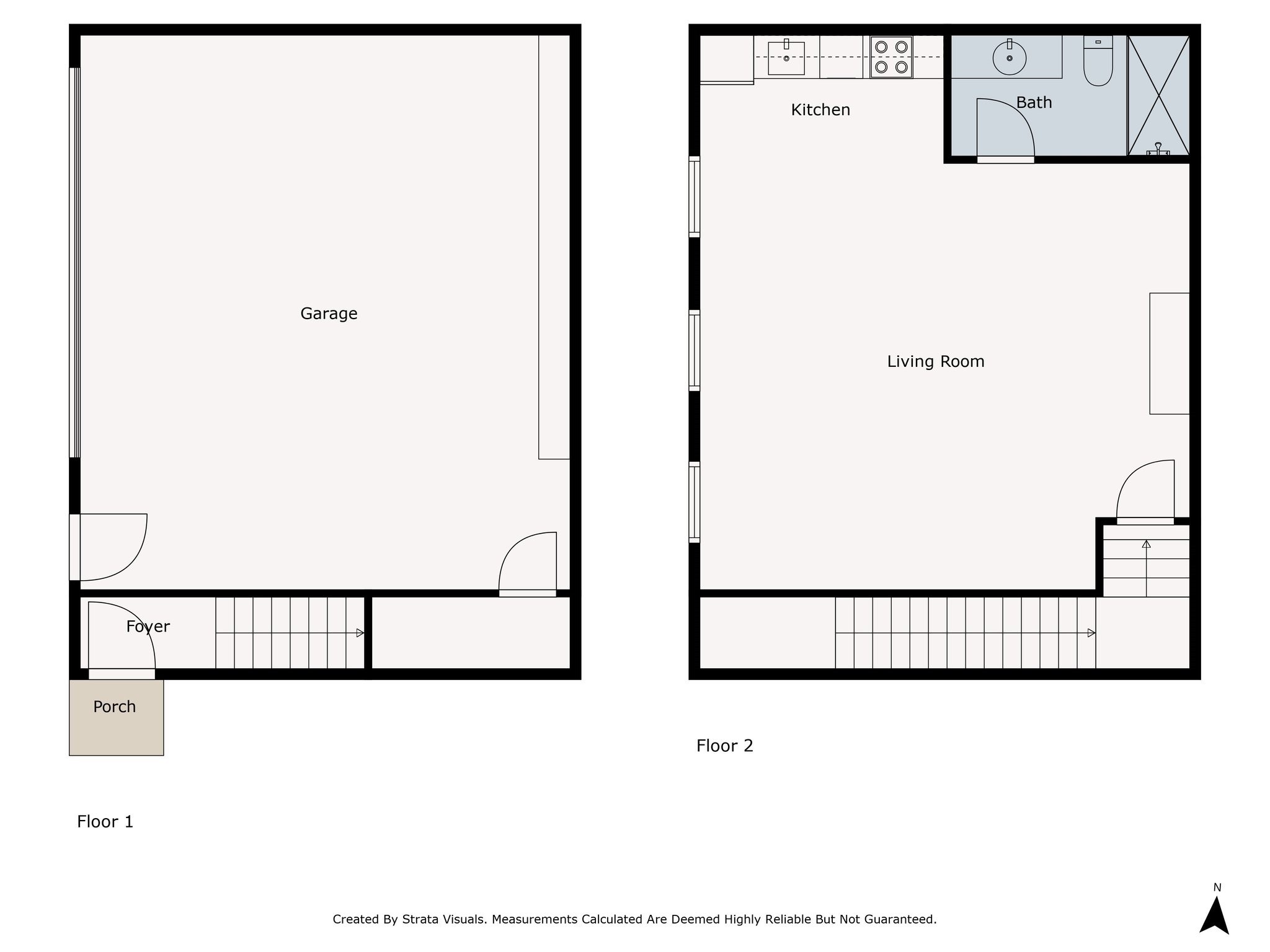
Floorplan of garage/garage apartment of 1226 Heights Blvd.
An interior staircase opens up to the finished garage apartment with kitchen and full bathroom.
Murphy bed on the back wall for guests. Central HVAC in place.
Kitchen of the garage apartment has everything one needs as a guest.
Full bathroom with walk-in shower for the garage apartment.
Stand-by generator in place for peace of mind.
Automatic driveway gate in place as you take one last look at 1226 Heights Boulevard...MAKE YOUR APPOINTMENT TODAY!
Just some of the fine features and fixtures of 1226 Heights Blvd.
Welcome to the Houston Heights...a smalltown community close to the big city to live, work and play! Nearby amenities include parks, trails, entertainment and the arts. So many great Heights area restaurants to enjoy either a short stroll, easy bike ride or Uber lift away. Lots of shopping in the Heights...from the M-K-T Marketplace and Heights Mercantile to the boutiques on 19th St. along with the mom & pops. Zoned to the IB programs at Harvard Elementary/Hogg MS/Heights HS. (buyer to verify eligibility)